Piekarnik parowy z funkcją pieczenia Gaggenau seria Expressive GS481120
Łatwy zwrot towaru w ciągu 14 dni od zakupu bez podania przyczyny
Gaggenau seria Expressive Piekarnik parowy z funkcją pieczenia 76 x 45 cm Zawiasy: Lewy
GS481120
Specjalne funkcje
Automatyczne programy i zalecenia dotyczące ustawień zapewniają precyzyjne i doskonałe rezultaty
- Wzornictwo wbudowanego interfejsu o wyrafinowanej estetyce, z pierścieniem ze stali nierdzewnej i haptycznym sprzężeniem zwrotnym.
- Pełnowymiarowe drzwi z zawiasem bocznym, otwierane jednym dotknięciem zapewniają łatwy i ergonomiczny dostęp.
- Zaawansowany program czyszczenia zapewnia nieskazitelne rezultaty, utrzymując urządzenie w nieskazitelnej czystości przy minimalnym wysiłku.
- Grill pełnopowierzchniowy z trybami parowymi dla spójnego, aromatycznego gotowania.
Najważniejsze cechy
- Bezuchwytowe szklane drzwi z elektronicznym otwieraniem.
- W pełni dotykowy wyświetlacz z pierścieniem sterującym ze stali nierdzewnej.
- Oświetlenie i wyświetlacz reagują na wykrycie użytkownika.
- Bezpośrednie podłączenie do źródła wody.
- Zewnętrzne wytwarzanie pary.
- Automatyczne czyszczenie z doskonałym rezultatem, również w przypadku silnych zabrudzeń.
- Grzanie gorącym powietrzem od 30 °C do 230 °C przy różnych poziomach wilgotności: 0%, 30%, 60%, 80%, 100%.
- Gotowanie Sous-vide z precyzyjnym ustawieniem temperatury.
- Pełnopowierzchniowy grill za ceramiką ze szkła, możliwość połączenia z termoobiegiem i parą do 230 °C.
- Programy automatyczne i zalecenia dotyczące ustawień.
- Pojemność netto 50 litrów.
Metody grzania / programy
- Gorące powietrze + 100 % wilgotności.
- Gorące powietrze + 80 % wilgotności.
- Gorące powietrze + 60 % wilgotności.
- Gorące powietrze + 30 % wilgotności.
- Gorące powietrze + 0 % wilgotności.
- Grill + obieg powietrza.
- Grill poziom 1 + wilgotność.
- Grill poziom 2 + wilgotność.
- Gotowanie Sous-vide.
- Gotowanie w niskich temperaturach.
- Wyrastanie.
- Utrzymywanie ciepła.
- Rozmrażanie.
- Regeneracja.
- 200 programów (programy automatyczne i zalecenia dotyczące ustawień).
- Możliwość zapisania do 30 ulubionych.
Obsługa
- Amortyzowane otwieranie drzwi 110° kąt otwarcia.
- Elektroniczne otwieranie drzwi.
- W pełni dotykowy wyświetlacz z pierścieniem sterującym.
- Dostępne 42 języki wyświetlacza.
- Wykrywanie użytkownika, możliwość regulacji odległości.
- Teksty informacyjne w celu uzyskania dodatkowych informacji.
- Animowane skrócone przewodniki ułatwiające obsługę urządzenia.
Wyposażenie
- Pełnopowierzchniowy grill o mocy 2 kW z powłoką ze szkła ceramicznego.
- Wentylator gorącego powietrza obraca się w obie strony dla lepszego rozprowadzenia powietrza.
- Podłączanie termosondy (można użyć sondy temperatury piekarnika).
- Grill można dodać na krótko w trybie gorącego powietrza w celu dodatkowego przyrumienienia.
- Nawilżanie.
- Funkcja usuwania pary.
- Automatyczne ustawienie punktu wrzenia.
- Precyzyjna kontrola temperatury z wyświetlaniem aktualnej temperatury.
- Funkcje timera: czas gotowania, koniec czasu, odliczanie czasu.
- Długoterminowy timer z wstępnie zaprogramowanymi cyklami grzania.
- Możliwość zaprogramowania automatycznego otwierania drzwiczek po zakończeniu gotowania w celu uniknięcia przegotowania.
- Optymalna widoczność wnętrza dzięki bocznemu oświetleniu.
- 3 poziomy gotowania.
Gaggenau Home Connect
- Zdalne sterowanie i monitoring.
- Oszacowanie czasu gotowania przy użyciu termosondy.
- Otwieranie drzwi za pomocą asystenta głosowego.
Bezpieczeństwo
- Blokada przed dziećmi zapobiegająca przypadkowemu włączeniu lub uruchomieniu urządzenia.
- Elektroniczna blokada drzwiczek zapobiegająca przypadkowemu otwarciu drzwiczek urządzenia.
- Wyłącznik bezpieczeństwa.
- Termoizolacja drzwi.
- Chłodzenie obudowy.
Czyszczenie
- Wnętrze ze stali szlachetnej.
- Automatyczne czyszczenie.
- Automatyczne odkamienianie generatora pary.
- Suszenie wnętrza.
- Automatyczne suszenie wnętrza po zakończonym procesie gotowania.
- Wszystkie wyjmowane części i akcesoria, w tym filtr, można myć w zmywarce.
Dane techniczne / Podłączenie
- Klasa efektywności energetycznej A w zakresie klas efektywności energetycznej od A +++ do D.
- Moc przyłączeniowa: 3.1 kW.
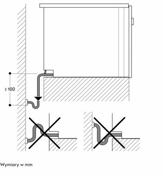
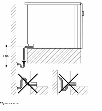
- Podłączenie możliwe tylko z zimną wodą.
- Aby umożliwić wykrywanie wody, zmiękczona woda musi mieć przewodnictwo > 200 μS/cm.
- Wąż dopływowy 3.0 m z gwintem przyłączeniowym ISO228-G 3/4'' (Ø 26,4 mm), z możliwością przedłużenia.
- Wąż odpływowy (Ø 25 mm) 3.0 m (HT-Hose), z możliwością przedłużenia.
- Kabel przyłączeniowy o długości 1.75 m z wtyczką.
Do pobrania
Rodzaj piekarnika
parowy
Wysokość [cm]
1 - 50
Kolor
Inox / Stalowy / Srebrny / Szary / Perłowoszary
Szerokość [cm]
61 - 80
Zapytaj o produkt
Napisz swoją opinię













