Funkcja pamięci, możliwość zapisania często używanych ustawień
Termosonda
Elektroniczna regulacja temperatury
Automatyczne propozycje temperatury
Funkcja szybkiego nagrzewania
Moc mikrofal: 1000 W
Możliwość pieczenia na 2 poziomach jednocześnie
Wskaźnik ciepła pozostałego
Blachy dołączone do piekarnika: 1 emaliowana blacha, 1 emaliowana brytfanna
Zabezpieczenie przed dziećmi: Funkcja zabezpieczająca przed przypadkowym uruchomieniem urządzenia.
Halogenowe oświetlenie piekarnika
Oświetlenie przy otwartych drzwiach
Wentylator chłodzący: Wentylator chłodzący uruchamia się automatycznie po włączeniu urządzenia. Chłodzi komponenty elektroniczne i części zewnętrzne.
Specyfikacja
Funkcja Connectivity: tak
Wyświetlacz: SUPEX8
Pojemność użytkowa [l]: 44
Sposób czyszczenia: emalia samoczyszcząca
Interfejs: sterowanie dotykowe
Maks. moc piekarnika [W]: 3000
Zakres temperatur: 30°C - 250°C
Maks. temperatura powierzchni drzwi powyżej temp otoczenia [°C] (zgodnie z normą EN30 lub 60335-1): 20
Tryby gotowania: mikrofale/wielofunkcyjne
Moc grzałki dolnej [W]: 1000
Moc grzałki grilla [W]: 1900
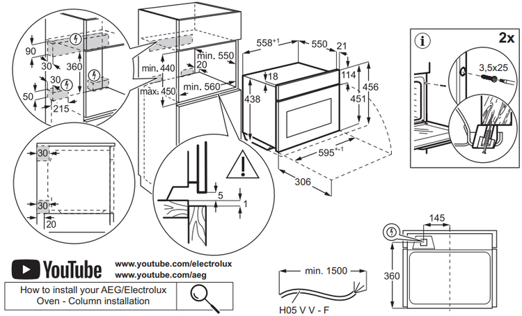
Instalacja
Wymiary w zabudowie (W x S x G) [mm]: 450x560x550
Całkowity pobór mocy [W]: 3000
Wymiary WxSzxG [mm]: 455x595x567
Waga brutto [kg]: 36.9
Waga netto [kg]: 35,2
Długość przewodu [m]: 1,5
Rodzaj wtyczki: Schuko
Napięcie [V]: 220-240
Wymagany bezpiecznik [A]: 16
Instalacja: do zabudowy
Wysokość [mm]: 455
Szerokość [mm]: 595
Głębokość [mm]: 567
Zużycie energii
Moc oświetlenia [W]: 25
Dane techniczne
Kod produktu (PNC): 944 005 126
Kolor: czarny matowy
Poziom pary: brak
Oświetlenie: 1, halogen góra
Typ : Piekarnik elektryczny do zabudowy
Brytfanny dołączone do piekarnika: 1 emaliowana blacha, 1 emaliowana brytfanna
Rodzaj rusztu: 1, chromowany
Prowadnice: Drabinki boczne Easy entry
Wyposażenie: zestaw
Komora: szara emalia
Kod EAN: 7333394108919
Funkcja CookView: nie
Moc grzałki termoobiegu [W]: 1750
Delikatne domykanie: tak
Połącz funkcje mikrofali i piekarnika, żeby gotować nawet dwa razy szybciej
Połączenie mikrofali i piekarnika konwekcyjnego pozwala przygotowywać przepyszne posiłki nawet dwa razy szybciej. Funkcja mikrofali skutecznie odgrzewa, gotuje i rozmraża jedzenie. Wentylator piekarnika konwekcyjnego dba o taki obieg powietrza gorącego, by danie było równomiernie ugotowane.
Łatwy sposób na smaczniejsze posiłki dzięki wskazówkom CookSmart Touch+
Ułatw sobie codzienne gotowanie i próbuj nowych technik. CookSmart Touch+ pomaga przyrządzać smaczniejsze dania, a przy tym wymaga mniej energii. Dodatkowo możesz odnaleźć ulubione dania za dotknięciem przycisku. Połącz się z aplikacją, by cieszyć się jak najlepszymi doświadczeniami.
Automatyczne ustawienia i powtarzalne rezultaty dzięki Gotowaniu wspomaganemu
Uzyskaj intuicyjny dostęp do najlepszych ustawień dla różnych dań dzięki funkcji Gotowania wspomaganego. Możesz pozwolić piekarnikowi na automatyczne dostosowanie ustawień albo samodzielnie kontrolować czas i temperaturę.
Zamiast zgadywać, użyj termosondy, żeby uzyskać lepsze rezultaty.
Przepyszne dania za każdym razem. Nowa automatyczna termosonda monitoruje temperaturę i informuje, kiedy jedzenie jest gotowe.
Rodzaj piekarnika
elektryczny
,
z mikrofalą
Rodzaj urządzenia
do zabudowy
Kolor
Czarny Mat
Szerokość [cm]
46 - 60
Sposób czyszczenia
Czyszczenie ręczne / Emalia łatwoczyszcząca
Wysokość [cm]
1 - 50
Twoja Kuchnia Electrolux z Przedłużoną Gwarancją
Twoja Kuchnia z Przedłużoną Gwarancją
Promocja trwa od 12.01.2026r. do 30.06.2026r.
Zgłoszenia w promocji przyjmowane są do 30.07.2026r. (włącznie), nie później jednak niż w ciągu 30 dni od dnia dokonania zakupu Produktów.
Promocja jest przeznaczona dla osób fizycznych, osób prawnych i jednostek organizacyjnych posiadających zdolność prawną.
Organizatorem jest „Electrolux Poland" Sp. z o.o. z siedzibą w Warszawie (01-207), ul. Karolkowa 30.
Sprawdź listę modeli urządzeń marki „Electrolux" objętych Promocją.
Warunki Promocji zawarte są w Regulaminie dostępnym na stronie Organizatora: electrolux.pl/promocje
Strona korzysta z plików cookie w celu realizacji usług zgodnie z Polityką dotyczącą cookies. Możesz określić warunki przechowywania lub dostępu do cookie w Twojej przeglądarce.